日期:
來源:購房網收集編輯:admin
奧園云璟價格20500元/平米,區域成華區。房子小但很溫馨奧園云璟戶型為122平-245平。
哪些元素能顯示業主的審美?無疑,基礎的建筑形式與風格是很直觀的展現。奧園云璟建筑形式板樓,物業費5.5元/㎡·月,區域成華區。
一汪碧水,靜觀氣象萬千;一座公園,領略四季風華。處景色宜人之處,自然心胸開闊,怡然自得。我心安處便是園,資源匯聚即為芯。雙享便捷交通與自然靜謐,是每一個人于繁忙都市中的真實渴望。奧園云璟,純熟配套,可享一城繁華。奧園云璟容積率2.00,戶型有3室-6室,醫院成都市成華區第三人民醫院、成華區青龍社區衛生服務中心

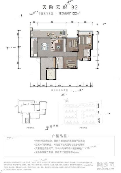
B2(3室2廳,122平,南北)

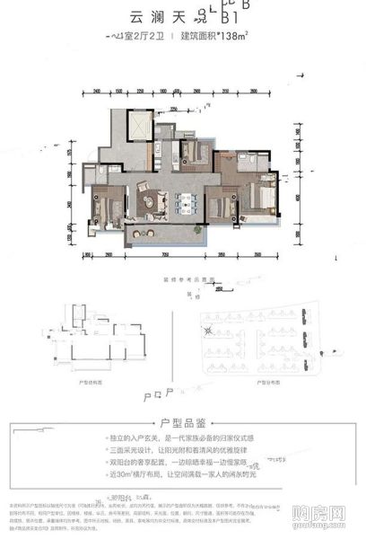
B1(4室2廳,138平,南北)

下疊A1戶型(6室2廳,245平,南北)
從生活習慣與日常動線出發,堅守改善「本色」,還原美好空間,深度演繹生活的真意!尊重改善人居本質,滿足居者無限期待!奧園云璟,產品設計中,每一個貼心的思考,只為呈現美好本色!奧園云璟規劃面積37328㎡,在售,樓座信息建筑類型: 疊加別墅。